Warriewood, NSW, 2102
- Car 16
- 518sqm
Two High Bay Warehouse Units - UNDER CONTRACT
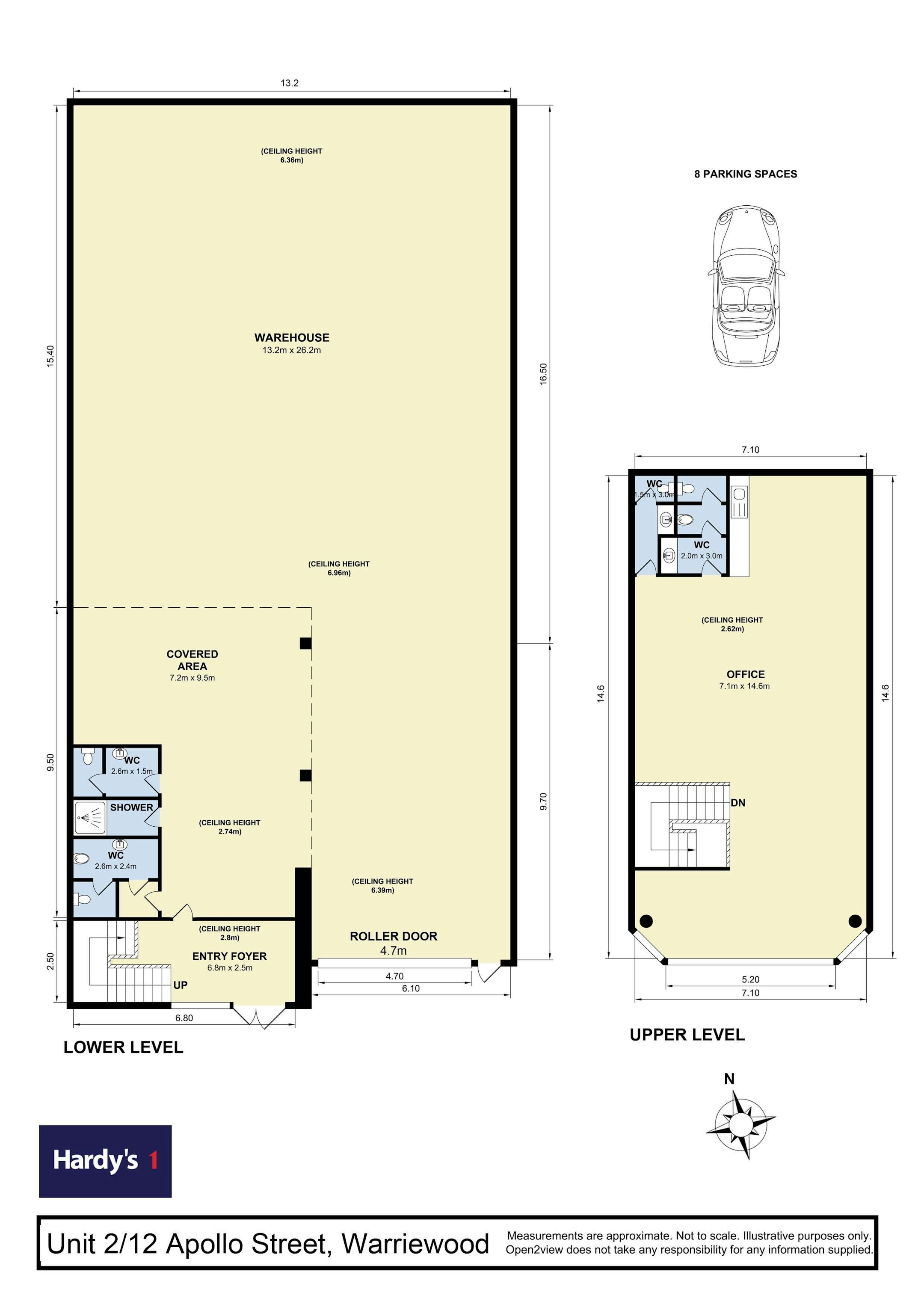
Available for lease through Hardy's are two High Bay Industrial units located in the Warriewood Industrial prescient. The units are well presented having just had the offices areas, amenities, external facade and warehouse areas refurbished. The development is in a private location in close proximity to Mona Vale Road, the main arterial road to the Northern Beaches.
Main Features
- Quite central location in the Warriewood Industrial area
- A choice of two industrial units to be leased separately
- Mezzanine level office with reverse cycle air-conditioning
- New industrial grade carpet & fresh paint work
- Floor to ceiling glass panel windows allowing natural light
- High bay, clear span warehouse with 7-meter clearance
- Oversized Roller shutter suitable for container access
- Unit 1: 518 sqm
- Unit 2: 472 sqm
- 3 Phase power
- Easy truck access throughout to development
- Flexible 4B Light Industrial Zoning
- 8 car spaces with each unit
- Suitable for manufacture or warehousing

Leased
This property has been leased, but if you’ve got questions, we’re here to answer them as best we can. Reach out to learn more.

Enquire
Warriewood, NSW, 2102
- Car 16
- AREA











