4/4 Prosperity Parade,
Warriewood
- Car 4
- 299sqm
Modern Warehouse ready to occupy NOW !
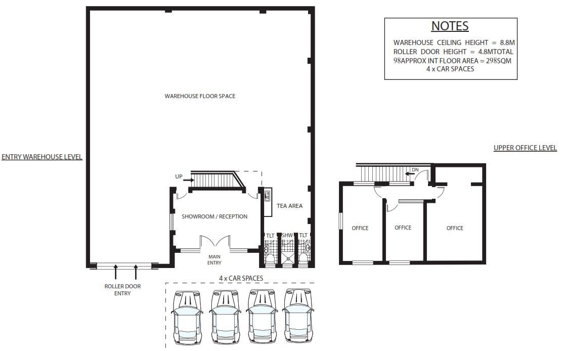
You will be impressed the moment you inspect this spacious quality clear-span warehouse in excellent condition and ready for immediate occupation. Minimum downtime during relocation and set up period. The property boasts numerous features that makes this a standout opportunity for the savvy business owner.
Features include:
• Immaculate presentation throughout the entire property
• Full glass stylish entry to ground floor reception / showroom area
• Air-conditioned Mezzanine level partitioned offices
• Minimum 8 meter Hi-Bay Clear span warehouse with good natural light
• Container height, 4.8 meter wide roller shutter access door
• Ample 3 phase power supply
• Total interior floor area 299 sqm (including 52sqm office area (NCA)
• Kitchenette, male & female amenities including shower
• 4 on grade car spaces at the front door
• This is the best presented Industrial Unit currently on the market.


Enquire
4/4 Prosperity Parade,
Warriewood
- Car 4
- AREA






