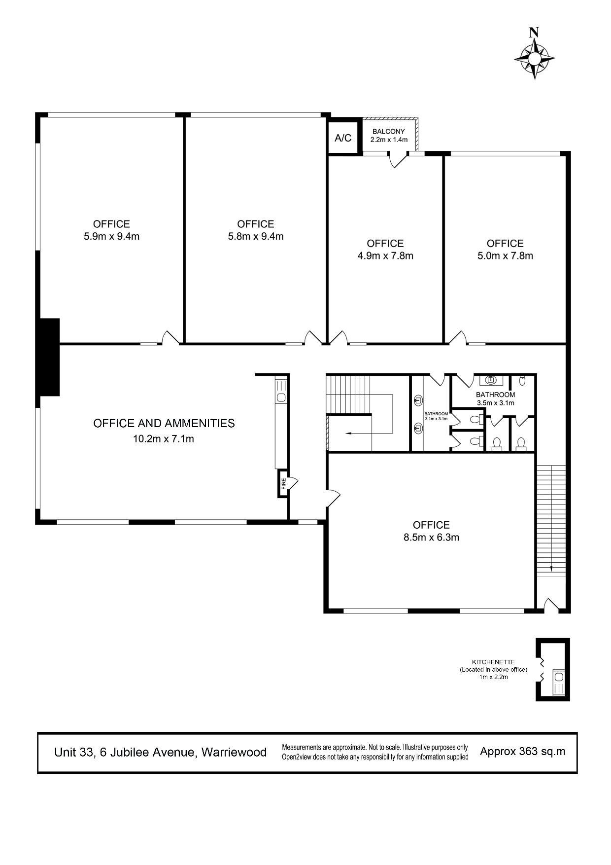
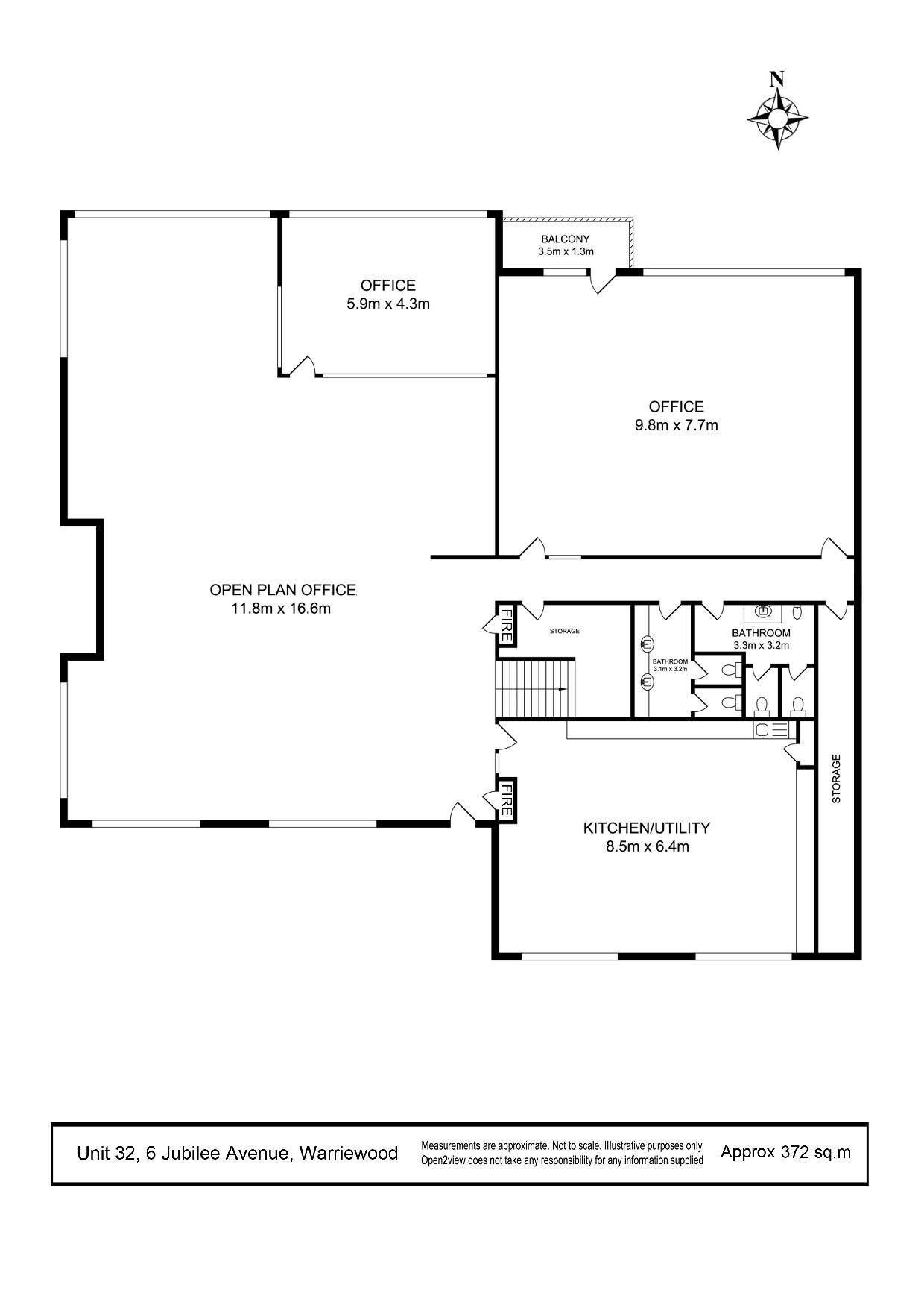
32 & 33/6 Jubilee Avenue,
Warriewood
- Car 20
- 626sqm
14 High Quality Office Suites for Sale or Lease
Hardy's are pleased to be appointed the selling Agents for a unique and totally flexible combination of modern Office Grade Strata Suites perfectly located in the bustling and highly sought after Warriewood Business Park precinct. The offering contains 14 separate Office Suites plus 20 Car spaces. The Office Suites span two floor levels and are available for individual purchase or lease.
A snap shot of just a few of the attributes of the properties are:
- Suitable for owner occupiers or investors seeking a quality office investment or business location.
- Future proof your business or investment with the flexibility offered in floor layout & amalgimation possibilities
- Existing high quality fit out in place assuring the astute buyer or investor minimum initial outlay.
- Investors note: potential to pre-lease various lots prior to settlement. Reduced vacancy factor.
- Each Suite includes ducted air conditioning and high-grade quality commercial carpet
- All Suites take full advantage of the abundant natural light & the green bush land outlook
- Large modern shared kitchen facility available, if sold in one line
- Car parking provided for each Strata Lot
Individual Office Areas: from 28 m² to 59 m² Total Area: 626 m²


Enquire
32 & 33/6 Jubilee Avenue,
Warriewood
- Car 20
- AREA













