12 Morandoo Rd
ELANORA HEIGHTS
- Bed 4
- Bath 3
- Car 2
Set in a peaceful cul de sac, this contemporary dual level residence is the epitome of modern living, boasting an elevated position awash with filtered Ocean & district views, conveniently located to Elanora shopping village, transport, local schools & beaches.
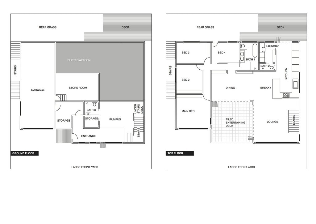
The upper level of this magnificent abode showcases modern open plan living at its finest, comprising of an eat-in stone kitchen with stainless steel gas appliances, generous lounge space and defined dining area, all flowing seamlessly together to a central alfresco terrace, a fantastic area to entertain. The living space enjoys lovely natural sunlight and filtered ocean views complimented by the vast amounts of glass windows and bi-folding doors finished off with hardwood timber floors.
Additionally this level offers four spacious bedrooms with BIRs; the master bedroom boasts a warm north east aspect with filtered ocean views. A luxurious master bathroom with freestanding bath, frameless glass shower finished of with mosaics and large format travertine tiles with under floor heating. There is a second bathroom on this level combined with the laundry.
The entry level features an informal living/rumpus area that opens to a private outdoor terrace, large under stair study nook, stylish bathroom and storage room; this area can be closed off to give teenagers the perfect place to retreat. There is reverse cycle ducted air conditioning and gas heating through-out the home.
The rear garden features a sun drenched entertainer's deck and a level child friendly grass area and the tropical landscaped front garden has plenty off room to drop in a pool (STCA).
There is a large tandem automated garage with internal access with an enormous workshop and plenty of storage with enough room to park a few more cars on the driveway.
12 Morandoo Rd is an amazing opportunity for families looking for a contemporary home in one of the hottest suburbs on the northern beaches that still has plenty of scope to capitalise in the future.

Sold
2013-09-24T00:00:00.000Z
This property has been sold, but if you’ve got questions about it, we’re here to answer them as best we can. Reach out to learn more.

Enquire
12 Morandoo Rd
ELANORA HEIGHTS
- Bed 4
- Bath 3
- Car 2












