11/1 Vuko Place
Warriewood
- Car 10
- 571sqm
EXCEPTIONAL CORPORATE OFFICE / WAREHOUSE OPPORTUNITY
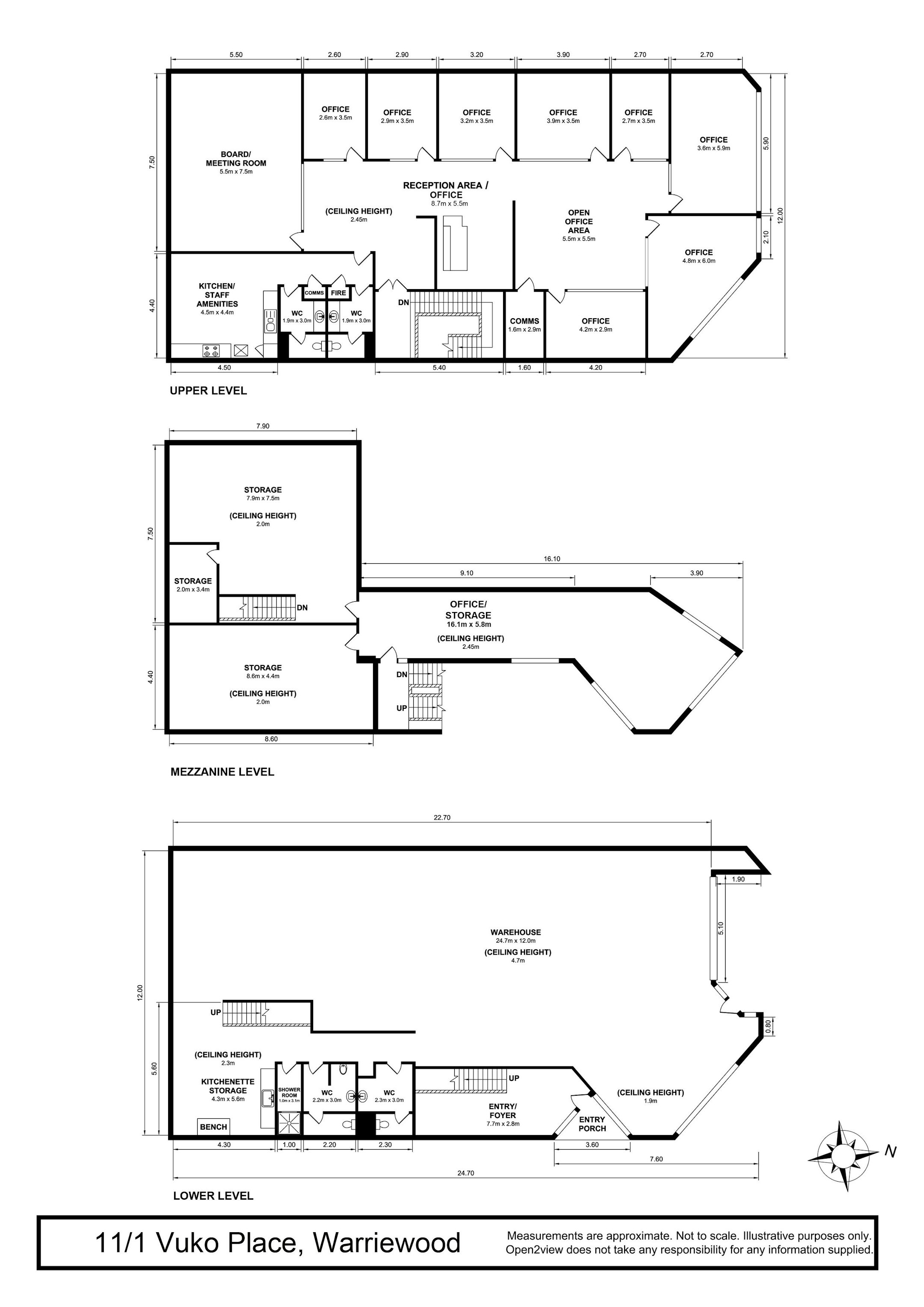
The North Agency - Commercial have been exclusively appointed as leasing agents for this impressive corporate office perfectly positioned in a corner location in a highly sought-after Warriewood Business Park. The office is situated near the main arterial road for the Northern Beaches and within close proximity to Warriewood Square and Mona Vale's business hub. Offered with the existing fit-out, this is a great opportunity to lease an outstanding Corporate Headquarters with many extra's.
Features include:
- Professional corporate presentation throughout the unit
- Existing fit-out to remain along with furniture if required
- Eight individual offices plus large open plan central office area
- Floor to ceiling glass partitioning and air-conditioning in all offices
- Well-appointed display / board room
- Generous fully pointed kitchen / staff room
- Large Mezzanine office and storage level with warehouse access
- High-Bay warehouse with Bifold access suitable for larger vehicles
- A total office area of 571 sqm + Mezzanine
- Building areas: Office: 288m² approx. Warehouse: 283m² approx. +
Mezzanine level
- 10 car spaces included with the lease
- Zoned SP4 Enterprise
- This office will be suitable for a wide range of Commercial / Industrial uses

Leased
This property has been leased, but if you’ve got questions, we’re here to answer them as best we can. Reach out to learn more.

Enquire
11/1 Vuko Place
Warriewood
- Car 10
- AREA











