1/80 Darley Street,
Mona Vale
- 178sqm
Prime Location Exceptional Investment
North Agency Commercial have been appointed as Exclusive Agents for the sale of Unit 1 / 80 Darley St Mona Vale, an opportunity to invest in a quality business unit located in the heart of Mona Vale's industrial precinct. Tenanted by the same local business for over twenty years, the property has exceptional frontage to Darley St, one of the most sought-after business locations on the Northern Beaches. Having a new three year lease, the property would make an excellent addition to any property portfolio.
For Sale by Expression of Interest
Key Features:
Highly visible location to Mona Vale's main Industrial throughfare
A small, well-maintained Strata Plan of only three units
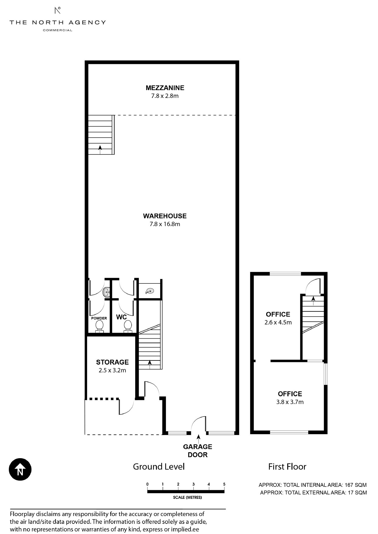
Office warehouse with large mezzanine storage level at rear of unit
Roller-shutter access to high-bay warehouse and manufacture area
Retail Style Shop frontage and mezzanine level office
Long term tenant
New 3 year lease with 3 year option
Current annual rent of $63,104 + GST Net
Tenant pays 100% of outgoings
Annual rent reviews and a market review on option
Total unit area of 178 sqm by Strata Plan
Two on grade car spaces on title + Storage area
Flexible E4 General Industrial Zoning
For Sale by Expression of Interest


Enquire
1/80 Darley Street,
Mona Vale
- AREA








