5 & 7 Cook Street,
Forestville
- 760sqm
Two Unique Adjoining Freehold Industrial Properties
Hardys Realty has been exclusively appointed to sell two exceptionally well located adjoining freehold industrial properties at 5 and 7 Cook Street, Forestville. The properties are in close proximity to the main arterial Warringah Road and sit comfortably into the cusp of Sydney's highly sought after North Shore and Northern Beaches catchment areas. The properties are being offered for sale in one line or individually at Public Auction for the first time in over 60 years.
Each property has a wide prominent presence with a combined street frontage of approx. 40 meters. The location is benefited by a constant high daily exposure to passing vehicular traffic on busy Warringah Road and is one of the major gateways to Sydney CBD and lower North Shore precinct.
Key Features:
• The properties are being sold as GST free
• Positioned in a tightly held niche location
• Flexible IN2 Light Industrial Zoning allowing for multiple uses
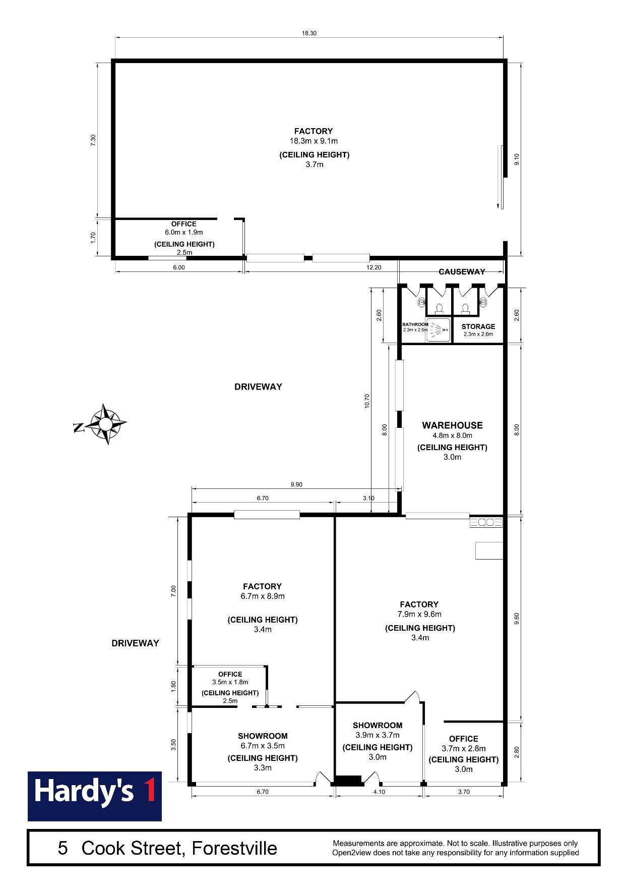
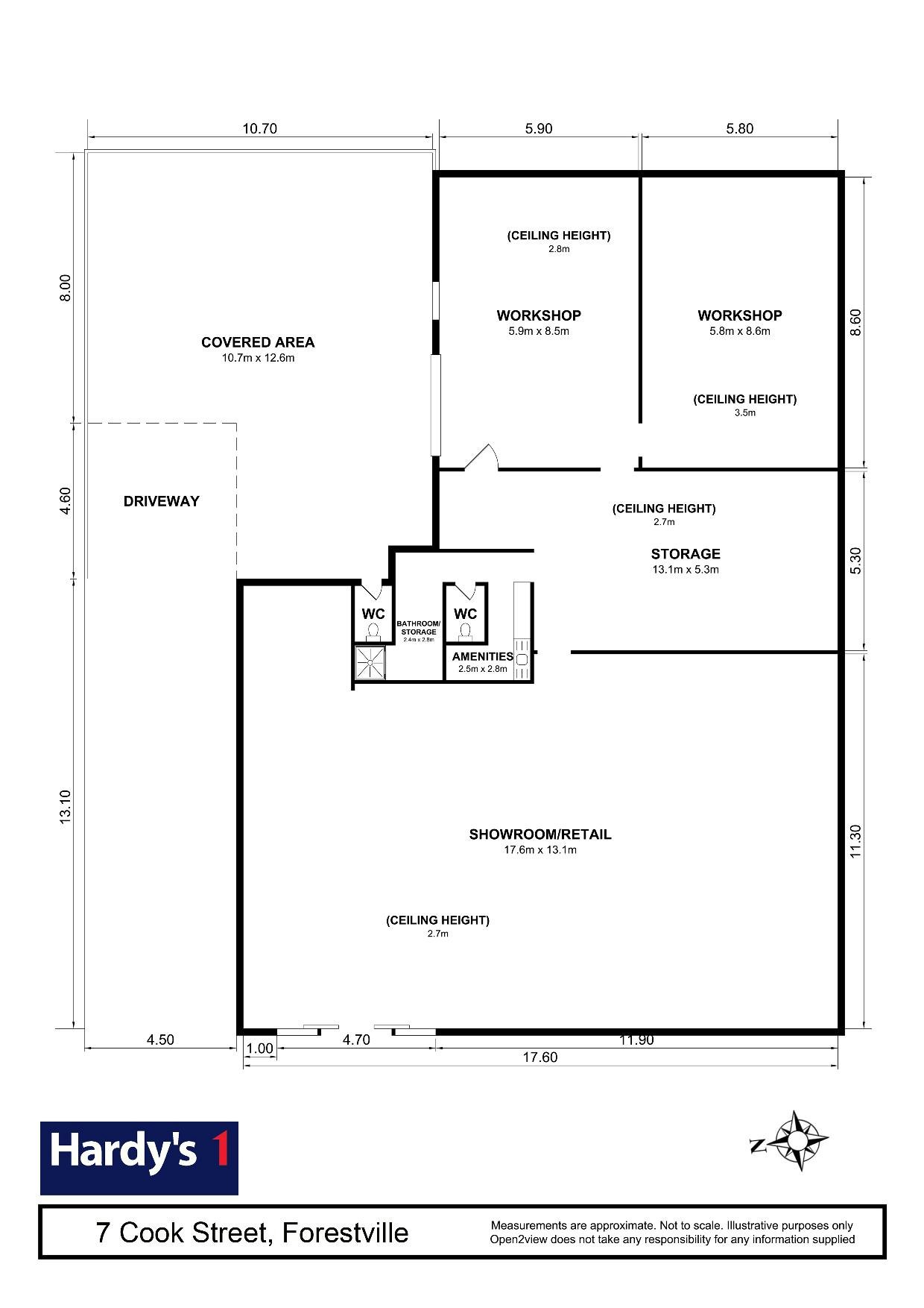
• The properties offer: reception area, large retail/showroom space, office and workshops
• Off street customer parking available with access to rear work bays and hardstand areas
• Potential opportunity for an owner occupier, long-term investor or developer
• Well serviced by surrounding main roads and public transport to all major business districts
• Surrounded by national tenants including Mitre 10, Shell Service Station, Bridgestone Select Tyre & Auto, Reece Plumbing, Metro Petroleum, First Choice Liquor, Coles, F45 Training and Jetts Fitness Australia.
• Unparalleled opportunity to secure highly sought after neighbouring freehold properties. An irreplaceable and rare offering for the first time in over 60 years.
• Land Area: No.5 - 784m² approx. No.7 - 784m² approx. (subject to survey)
• Building Area: No.5 - 380m² approx. No.7 - 380m² approx (subject to survey)
For Sale via Public Auction
When: Tuesday 5th of June 2018 at 10:30am (if not sold prior)
Where: AuctionWorks Mezzanine Level, 50 Margaret Street, Sydney
For more information or to arrange an inspection contact the exclusive agent:
NSW Director | Jasmine Bilbosian
jasmineb@hardysrealty.com.au
0438 214 148


Enquire
5 & 7 Cook Street,
Forestville
- AREA 1568sqm


















